WINE BAR
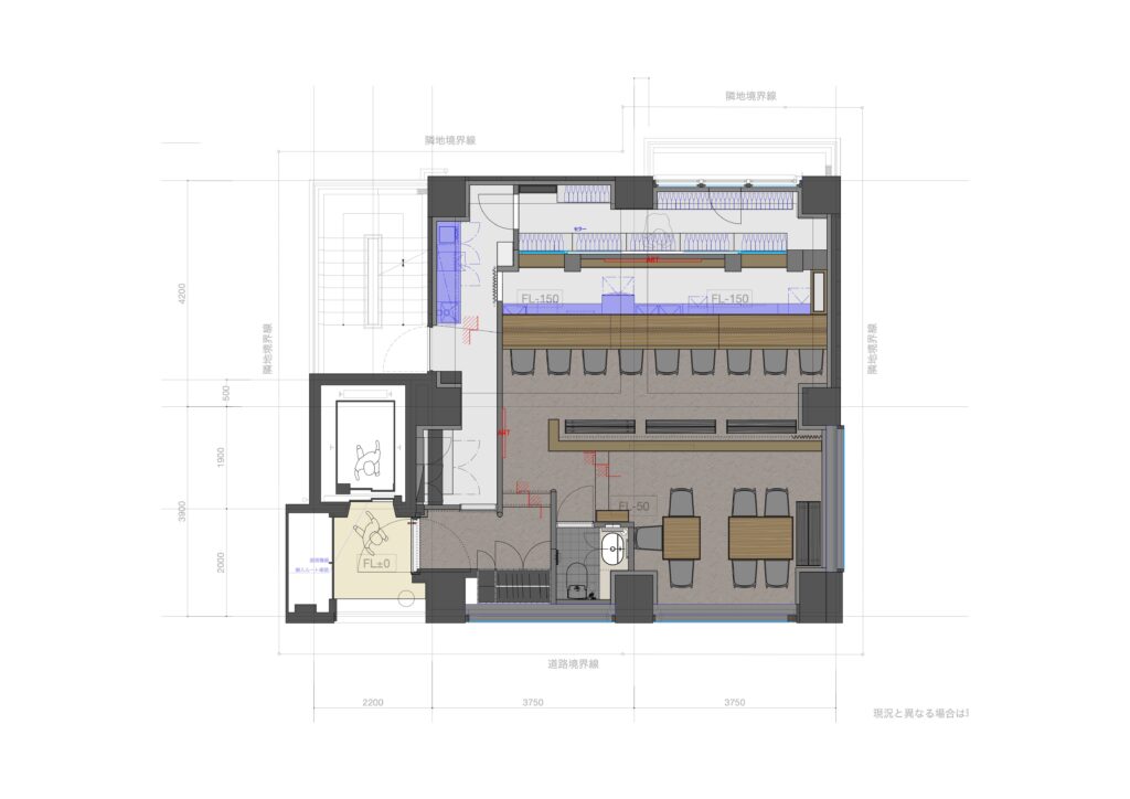
49㎡/14.82坪 Customer zone
16㎡/4.84坪 Back of House
August, 2025
Ginza, Tokyo
photo: Kenta Hasegawa
“静かな余韻を感じるためのワインバー”
Salon du vin ivresse は、東京・銀座に誕生したワインバーである。立地は銀座七丁目。人の流れの多いエリアにありながら、建物の五階という環境も手伝い、外の喧騒から少し距離を置いた落ち着きのある場所となっている。
設計では、ワインと向き合うための空間をどのようにつくるかを丁寧に検討した。香りや温度、グラスを傾ける瞬間の静けさ。そうした小さな変化を受け止められる余白を意識している。ワインバーに求められる華やかさよりも、もう少し深いところにある時間の流れを拾い上げたいと考えた。
カウンター背面には深緑の石材を採用した。葡萄畑の木陰に身を置いたときのような静けさを持ち、光を受けたときの陰影に奥行きが生まれる。石の前に並ぶワインは、単なるストックではなく空間のリズムとして機能するように構成した。一本一本のボトルが空気の密度をつくり、空間全体の印象を形づくる。
正面の壁面には余白を大切にした和紙のアートを配置している。和紙の繊維が持つ揺らぎは、光の強弱によって表情が変化し、時間帯によって見え方が異なる。撮影時には捉えきれない、実際の時間の中で立ち上がるニュアンスが、この空間に必要だと考えた。奥の席では光量を抑え、会話とワインに集中できる穏やかな環境をつくっている。
空間を構成する要素は多いが、主張させすぎず、重ね合わせていくことを意識した。石、木材、和紙、間接光。それぞれの素材が単独で完結せず、静かに溶け合うよう調整している。照明では光源そのものを見せず、反射や陰影の濃淡によって空気を整えることを目的とした。何を照らし、何を照らさないか。その線引きに細かな調整を行っている。
動線はシンプルで、入口からカウンターへ視線が自然に導かれるようにしている。グラデーションのある壁面は空間の温度を緩やかに変化させ、座席ごとの落ち着きにも寄与している。入口付近には抽象的なアートピースを置き、限られた面積の中で前室のような領域をつくり出した。テーブル席の窓側には、隣接する街の風景を借景として空間に取り込むアートを配置している。アンビエントな柄に落ちる影は時間によって変化し、都市の静かな動きを室内に映し込む。
サービス動線や設備計画にも配慮し、余計な存在感をできるだけ抑えた。ワインバーとして必要な機能を満たしつつ、空間の密度を保っている。洗面室も全体の素材やトーンに寄り添わせ、過度に切り替わる印象が無いよう整えている。
このプロジェクトでは、単に店舗の内装を整えるのではなく、ワインを味わう前後の時間にある静かな動きをどう扱うかが大きなテーマであった。最初の一杯を口に含んだ瞬間、あるいは余韻が深まる場面。その時間に寄り添える空気をつくりたいと考えた。素材や光が過度に主張せず、かといって埋もれない。淡々とした存在感の中に、確かな質量を持つ空間を目指している。
完成後の空間では、時間の流れが少しゆっくり感じられる。ワインボトルがつくる小さなリズム、和紙が吸い込む柔らかな光、石材が生む温度のない静けさ。それらをひとつの場所として束ねたのがこのワインバーである。銀座という街であっても過度に華やかにせず、穏やかに過ごせる環境をつくることを意図した。
Salon du vin ivresse は、ワインと静かに向き合うための場所として計画した。日常の喧騒から少し距離を置き、素材と光がつくる落ち着いた空気の中で、余韻がゆっくりと深まっていくような時間を意識している。店名の「ivresse(陶酔)」が示す通り、五感が自然と整い、静かな高揚が穏やかに訪れる空間を目指している。













設計者記録やBeforeなど







